Construcciones Latapia
Construcciones Latapia

Descripción de los pisos disponibles 

Pisos disponibles situados frente a la mayor zona verde y de ocio de la ciudad (s-20)

Edificio en urbanización privada de 17 vivientas de 1, 2, 3 y 4 habitaciones, con cocina amueblada, plaza de garaje y trastero. 

580.000 € + IVA

* 4 habitaciones

* 3 Baños, 2 de ellos              exteriores

* Terraza: 76,64 m2

* Jardin: 91,70 m2

* Sup.útil: 97,55 m2

* S.construida:116,16m2  

* S. construida con

  ZZ.CC.:  134,32 m2

* Cocina amueblada 

* Plazas de garaje y

   trastero.

Orientación: Norte, Este y Sur 

480.000 € + IVA

* 3 habitaciones

* 2 Baños exteriores

* Terraza 7,74 m2.

* Sup.útil: 81,04 m2

* S.construida:96,52 m2  

* S. construida con

  ZZ.CC.:  119,79 m2

* Cocina amueblada 

* Plaza de garaje y

   trastero.

Orientación: Norte, Oeste y Sur 

450.000 € +IVA

* 2 habitaciones

* 2 Baños exteriores

* Terraza 18,78 m2.

* Sup.útil: 64,86 m2

* S.construida:77,45 m2  

* S. construida con

  ZZ.CC.:  108,67 m2

* Cocina amueblada 

* Plaza de garaje y

   trastero.

Orientación: Norte, Este y Sur 

310.000 € + IVA

* 1 habitación

* 1 Baño

* Terraza 4,66 m2

* Sup.útil: 41,32 m2

* S.construida:47,99m2  

* S. construida con

  ZZ.CC.:  60,45 m2

* Cocina amueblada 

* Plaza de garaje y

   trastero.

Orientación. Norte

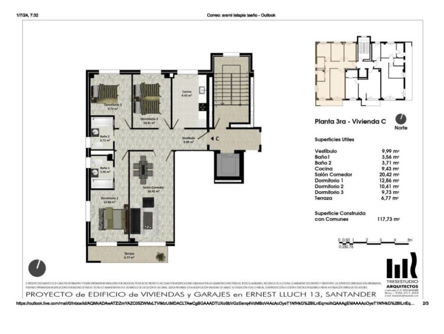
 495.000 € +IVA

* 3 habitaciones

* 2 Baños exteriores

* Terraza 6,77 m2

* Sup.útil: 80,11 m2

* S.construida:95,71m2  

* S. construida con

  ZZ.CC.:  117,73 m2

* Cocina amueblada 

* Plaza de garaje y

   trastero.

Orientación. Norte-Oeste y Sur

Construcciones Latapia

La Pereda 15, 5º G

39012 Santander

Tfno: (+ 34)  676 09 57 52

e-mail: lattae17@hotmail.com

 

 

 

 

Versión para imprimir | Mapa del sitio
© Construcciones Latapia e-mail: lattae17@hotmail.com. La Pereda 15, 5º G, 39012 - Santander (Cantabria) Tfno: (+ 34) 676 09 57 52